ENTER键搜索或按ESC键关闭

水槽 Foster Milano
详细资料
特点
附件
备择方案
详细资料
产品编号
1018055
材料
AISI 304 不锈钢
表面处理
拉丝 Foster
质地
磨砂
边型和安装方式
Q4边 (4 mm)
底座
120 cm
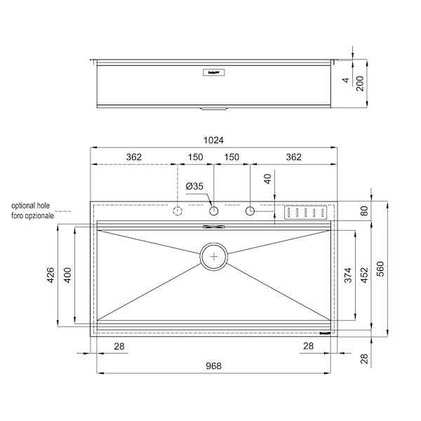
尺寸
1024x560 mm
标准配件
固定钩, 垫圈, 下水器, 溢水口和虹吸管, 纸板盒包装
龙头孔
2个定位孔
安装孔
1004x540 mm
下水器
102 cm
盆内尺寸
968x400 mm
单槽/双槽
单槽
下水组件
自动下水SPACE MILANO - 3.5 "
特点
Space 下水器Space 下水器
SPACE不锈钢下水器的不锈钢盖子关闭了排水管,可隐藏任何残余物,将它们收集在下面的篮子里,令水槽显得格外优雅。SPACE还具有较小的占地面积,并且可以最佳地利用水槽下隔室。
三重滑轨三重滑轨
Foster Milano水槽使用巧妙的设计可以同时使用多个不同的附件。最上面一层,可以放置可滑动的创新的黑搁架,可以创造一个大的工作平面来冲洗食物和餐具。第二层用来放置和滑动通用配件,可以完成洗、冲、切、剁等多种功能。第三层靠近水槽底部,你可以放置冲洗过的食物餐具而不接触槽底,既可以沥水又不怕被槽底弄脏。
双龙头孔双龙头孔
龙头安装区配备了两个龙头安装孔。在第二个孔中,可以安装自动排水管的遥控器,或者,一个实用的肥皂分配器。
深:56 cm深:56 cm
Foster Milano系列水槽深度56cm,尺寸的增大意味着功能的强大,这也是它的独特之处。
溢水口溢水口
溢水口是Foster水槽上的一项安全措施,可以防止疏忽时水的溢出。方形溢水解决方案,具有简约的方形,更加美观大方。
自动下水器自动下水器
提供带有圆形遥控旋钮的垃圾配件; 实用的配件,无需弄湿即可将水从碗中沥干。
节省空间系统节省空间系统
下水器和虹吸管的设计目的是在水槽下方留出尽可能多的空间,如今对于这些单独的废物收集系统越来越有用。
钻石型底部钻石型底部
排水是水槽的一项重要功能,在Foster产品中始终要小心处理。 在具有平底的弯曲焊接水槽中,优雅的斜角确保适当的排水,有助于水流。
高 厚度高 厚度
1mm厚的钢。 相当大的厚度,保证了最大的坚固性和耐用性。
Foster Milano

水槽 Foster Milano

1018 055
装备1 x 自动排水空间米兰 8407 115
1 x 刀架元素
了解更多
分享