ENTER键搜索或按ESC键关闭

水槽 GK
详细资料
特点
附件
配对
下水
备择方案
详细资料
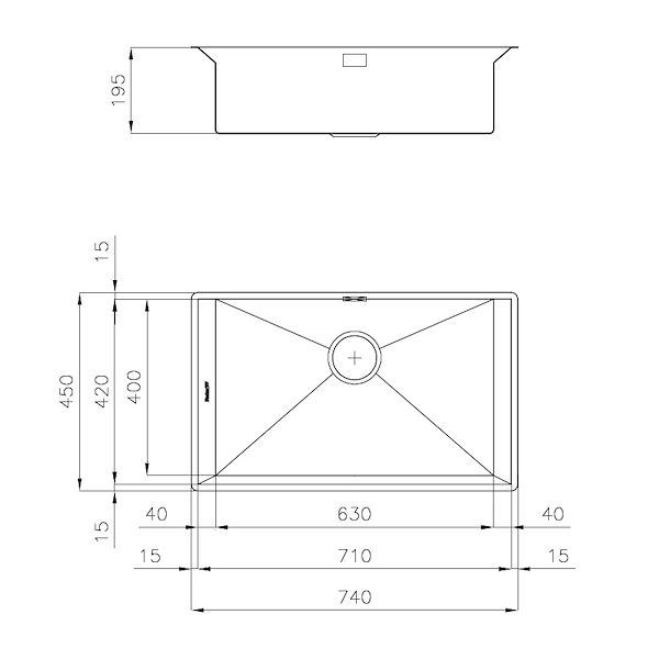
产品编号
1404880
材料
AISI 304 不锈钢
质地
Vintage
边型和安装方式
台下
底座
80 cm
尺寸
740x450 mm
标准配件
固定钩, 垫圈, 下水器, 溢水口和虹吸管, 纸板盒包装
龙头孔
无定位孔
安装孔
710x420 毫米
下水器
74 cm
盆内尺寸
630x400mm
单槽/双槽
单槽
下水组件
下水器 SPACE 3,5"
特点
老式老式
复古外观赋予产品长久而优雅的外观,形成了不怕刮擦的表面。
Space 下水器Space 下水器
SPACE不锈钢下水器的不锈钢盖子关闭了排水管,可隐藏任何残余物,将它们收集在下面的篮子里,令水槽显得格外优雅。SPACE还具有较小的占地面积,并且可以最佳地利用水槽下隔室。
倾斜凹槽倾斜凹槽
深而倾斜的凹槽可放置燃烧器和锅架,使后两者形成单一的工作表面。此外,凹槽的倾斜令棱角的清洁格外容易。
双龙头孔双龙头孔
龙头安装区配备了两个龙头安装孔。在第二个孔中,可以安装自动排水管的遥控器,或者,一个实用的肥皂分配器。
小倒角小倒角
具有现代设计和更大容量的方形碗,具有最小的美观性和极高的实用性。
方形水盆 - 0/9 度方形水盆 - 0/9 度
Foster的方形水槽具有完美的垂直边缘,在底部有一个半径为9mm的弧度,便于清洁操作。
溢水口溢水口
溢水口是Foster水槽上的一项安全措施,可以防止疏忽时水的溢出。方形溢水解决方案,具有简约的方形,更加美观大方。
节省空间系统节省空间系统
下水器和虹吸管的设计目的是在水槽下方留出尽可能多的空间,如今对于这些单独的废物收集系统越来越有用。
钻石型底部钻石型底部
排水是水槽的一项重要功能,在Foster产品中始终要小心处理。 在具有平底的弯曲焊接水槽中,优雅的斜角确保适当的排水,有助于水流。
高 厚度高 厚度
1mm厚的钢。 相当大的厚度,保证了最大的坚固性和耐用性。
GK

水槽 GK

1404 880
分享